项目位于新东区核心地段,位于星城路与观畅路交汇处,受圆融和新东区两大商圈辐射,毗邻地铁2号线园林路站,与南通客运东站相近,周边交通便捷,定位高端精选服务酒店。紧邻地铁2号线园林路站,距离兴东国际机场,车程时长约15分钟。距南通东站3公里,南通站8.5公里,南通西站18公里。紧靠海港引河生态绿廊,沿河生态公园,交通与商业便利度高,期资产保值潜力大。
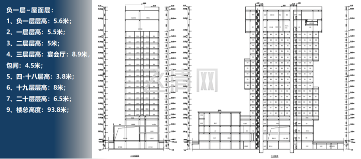
酒店含287间客房,客房层共15层,每层建筑面积1256㎡,合计面积:18840m2;每层20间客房,客房共300间,客房面积:42.7㎡;层高:3.6m。共20层、4部客梯、2部货梯兼消防梯。










旅居交易精灵101608...






