全球站
[
切换站点
]
热门站点
全球站
官方站
飞清网
地方区域站
海外
澳门特别行政区
香港特别行政区
台湾省
新疆维吾尔自治区
宁夏回族自治区
青海省
甘肃省
陕西省
西藏自治区
云南省
贵州省
四川省
重庆市
海南省
广西壮族自治区
广东省
湖南省
湖北省
河南省
山东省
江西省
福建省
安徽省
浙江省
江苏省
上海市
黑龙江省
吉林省
辽宁省
内蒙古自治区
山西省
河北省
天津市
北京市
深圳分站
海外站
埃及
南非
阿根廷
巴西
日本
泰国
印度
马来西亚
新加坡
韩国
西班牙
俄罗斯
乌克兰
意大利
奥地利
爱尔兰
芬兰
丹麦
瑞典
挪威
希腊
瑞士
荷兰
捷克
德国
法国
英国
新西兰
澳大利亚
加拿大
美国
联系我们
权限明细表
个人信息共享清单
用户协议
隐私政策
账号注销及删除
酒店交易网服务号
酒店交易网订阅号
关于我们
分类信息
分类信息
头条文章
搜 索
点击登录
发布信息
首页
酒店头条
酒店租售
物业租售
仓库租售
厂房租售
写字楼租售
商铺租售
求租求购
土地租售
品牌加盟
国外酒店
首页
>
酒店租售
>
宁波余姚一站式商业综合体地标酒店,准四星高标打造 I 项目可租/可售
宁波余姚一站式商业综合体地标酒店,准四星高标打造 I 项目可租/可售
浏览:5621 刷新:
4 天前
项目类型 :
商业酒店型
独栋/楼层 :
独栋
建筑面积 :
22138平
合同年限 :
15年
物业租金 :
面议万/月
物业管理费 :
面议万/月
停车位数量 :
面议个
出租价 :
面议
地区 :
浙江省 宁波市
飞清网 APP同步展示
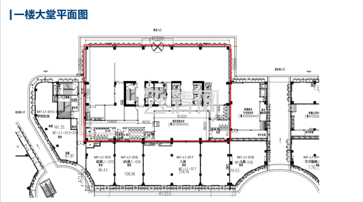
项目位于余姚城区北部,南临晋涵路,东靠迎霞北路,距离余姚、慈溪市中心约12公里、余姚北站约8公里、杭州湾大桥约20公里、宁波栎社国际机场约65公里。辐射余慈约88个社区、近30万人口。产业集聚裘皮、五金机械、家用电器、塑料磨具等7000余家企业。近距离拥有全球最大的裘皮服装服饰交易集散地。
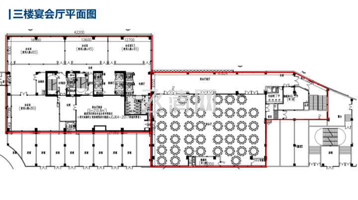
酒店按准四星酒店规划布局,总建筑面积:20001㎡,其中地上面积:17288㎡,地下面积:2713㎡。269间客房,规划有近700㎡的无柱宴会厅、大小会议室4间、全日餐厅、健身泳池等配套区域。
联系人:
张灿
联系电话:
139****8805
微信扫一扫查看电话
推荐信息
9图
置顶
上海迪斯尼酒店转让
酒店租售/酒店转让
上海市/浦东新区
卓寿实
·
1 小时前
5图
置顶
上海国展中心附近酒店转让转租
酒店租售/酒店转让
上海市/闵行区
旅居交易精灵101608...
·
3 天前
5图
置顶
江苏苏州6.9万平黄金地段酒店
酒店租售/酒店出售
江苏省/苏州市
煜.Dong???
·
3 天前
7图
置顶
黄果树景区独栋物业及酒店出售
物业租售/物业交易
贵州省/安顺市
异方
·
3 天前
3图
置顶
贵州安顺景区2700平酒店出售
酒店租售/酒店出售
贵州省/安顺市
异方
·
3 天前
4图
置顶
重庆九龙坡区单体酒店转让
酒店租售/酒店转让
重庆市/九龙坡区
酒店寻优者101603...
·
3 天前
9图
置顶
河南省洛阳市老城区营业中酒店转让,位置很好,非诚勿扰!...
酒店租售/酒店转让
河南省/洛阳市
汉辰酒店
·
4 天前
9图
置顶
杭州临安高星酒店,城市微度假栖息地 I 项目可租/可售...
酒店租售/酒店出租
浙江省/杭州市
张灿
·
4 天前
9图
置顶
扬州广陵主城地标酒店,周边顶流文旅复集 I 项目可租/可售...
酒店租售/酒店出租
江苏省/扬州市
张灿
·
4 天前
9图
置顶
南通崇川温德姆酒店,15分钟直达机场 I 项目可租/可售...
酒店租售/酒店出租
江苏省/南通市
张灿
·
4 天前
查看更多信息 >
发布者
张灿
Ta的主页
联系客服
返回顶部